Что включено:
- обмерный план (выезд на объект для замеров);
- план демонтажа перегородок (при наличии соответствующего раздела);
- планировочное решение с расстановкой мебели;
- план возводимых перегородок с указанием размеров (при наличии соответствующего раздела);
- план полов с привязками, указанием площади и направления укладки материала и периметром напольного плинтуса;
- план теплого пола (при наличии соответствующего раздела);
- план расположения осветительного оборудования;
- план расстановки розеток и выводов для других электроприборов;
- план расположения выключателей и указание групп включения;
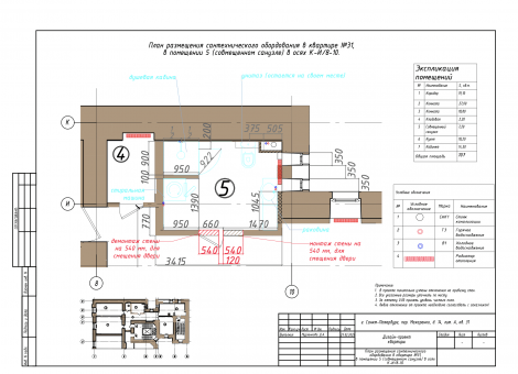
- план расположения сантехники, отопления и вентиляции;
- план потолков с привязками и указанием периметра потолочного плинтуса и лепнины;
- детальные развёртки с указанием отделочных материалов (без подборки конкретных артикулов);
- трехмерные эскизные виды;

